Состав проекта ландшафтного дизайна в Фрязине
Ландшафтный дизайн-проект участка может быть выполнен в составе комплектов (стоимость):
"Эскизный комплект" - концепт планирования участка с дендропланом, посадочной ведомостью и 3D визуализациями;
"Рабочий комплект" - "Эскизный комплект" + Чертежи (разбивочный чертеж участка, план покрытия, схема освещения, схема автоматического полива, схема дренажной системы и ливнеотвода).
Эскизный комплект
(концепт планирования участка с дендропланом, посадочной ведомостью и 3D визуализациями)
-
1. Титульный лист

-
2. Мастерплан

-
3. Дендроплан. Лиственные растения

-
4. Палитра лиственных растений

-
5. Дендроплан. Хвойные растения

-
6. Палитра хвойных растений

-
7. Дендроплан. Многолетники. Злаки. Лианы

-
8. Палитра многолетних растений и злаков

-
9. Визуализация участка в дневное время

-
10. Визуализация участка в дневное время

-
11. Визуализация участка в дневное время

-
12. Визуализация участка в дневное время

-
1. Титульный лист

-
2. Ведомость чертежей. Общие данные

-
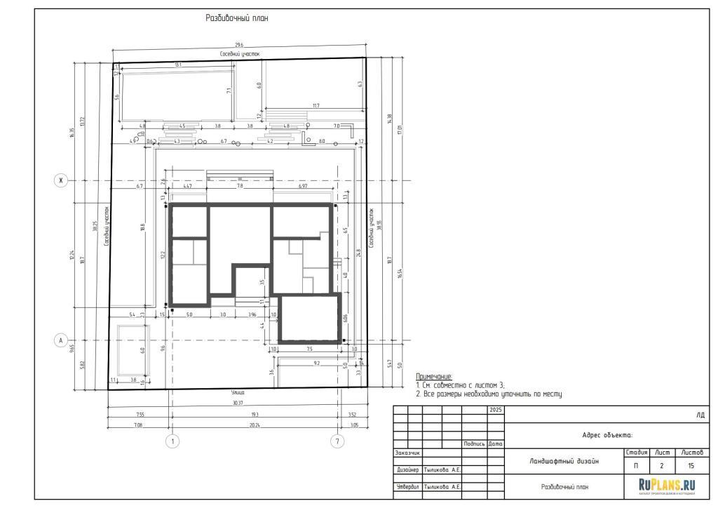
3. Разбивочный план

-
4. Мастерплан

-
5. Дендроплан. Лиственные растения

-
6. Палитра лиственных растений

-
7. Дендроплан. Хвойные растения

-
8. Палитра хвойных растений

-
9. Дендроплан. Многолетники. Злаки. Лианы

-
10. Палитра многолетних растений и злаков

-
11. План покрытий

-
12. План освещения

-
13. План автополива

-
14. Визуализация участка в дневное время

-
15. Визуализация участка в дневное время

-
16. Визуализация участка в дневное время

-
17. Визуализация участка в дневное время

-
18. Визуализация участка в вечернее время

-
19. Визуализация участка в вечернее время

Рабочий комплект
Концепт планирования участка с дендропланом, посадочной ведомостью и 3D визуализациями + Чертежи (разбивочный чертеж участка, план покрытия, схема освещения, схема автоматического полива, схема дренажной системы и ливнеотвода)